Property Search
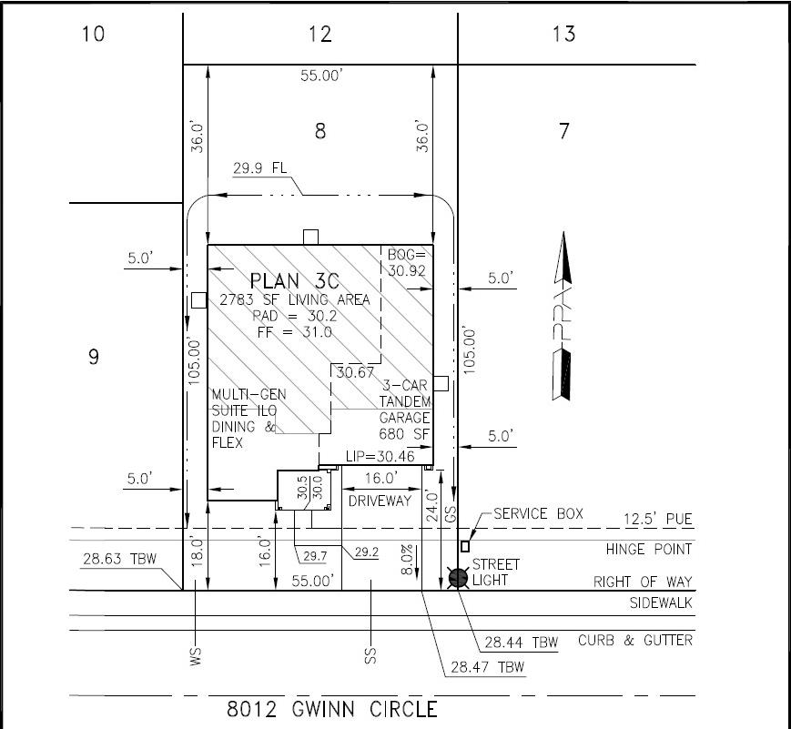
8012 Gwinn CircleElk Grove, CA 95757
Due to the health concerns created by Coronavirus we are offering personal 1-1 online video walkthough tours where possible.




New Construction - October Completion! Built by America's Most Trusted Homebuilder. Welcome to the Brooklyn at 8012 Gwinn Circle in Madeira Greens! Step inside this thoughtfully designed two-story home where open-concept living meets comfort and style. The welcoming foyer leads past a versatile multi-gen suite, perfect for guests or extended family. At the heart of the home, the chef-inspired kitchen flows seamlessly into the dining and great room, creating an ideal space for gathering. A convenient half bath is located near the 3-car tandem garage entry. Upstairs, discover two bedrooms, a shared full bath, a loft, and a laundry room. The primary suite offers a spa-like bath and a spacious walk-in closet. Tucked just south of Sacramento near Highway 99, this friendly community combines small-town charm with everyday convenience. Enjoy nearby shopping, dining, and entertainment for the best of both worlds. Additional Highlights Include: Multi-gen suite. MLS#225119717
7 days ago | Listing updated with changes from the MLS® | |
a month ago | Price changed to $799,999 | |
a month ago | Listing first seen on site |

All measurements and all calculations of the area are approximate. Information provided by Seller/Other sources, not verified by Broker. All interested persons should independently verify the accuracy of information. Provided properties may or may not be listed by the office/agent presenting the information. Data maintained by MetroList® may not reflect all real estate activity in the market. All real estate content on this site is subject to the Federal Fair Housing Act of 1968, as amended, which makes it illegal to advertise any preference, limitation or discrimination because of race, color, religion, sex, handicap, family status or national origin or an intention to make any such preference, limitation or discrimination. Terms of Use
Last checked 2025-10-14 05:22 AM PDT
Did you know? You can invite friends and family to your search. They can join your search, rate and discuss listings with you.